Price £14,000 per annum - Available Now - Unfurnished


  • Town Centre Location
  • Large Window Display
  • New lease Negotiated as Required

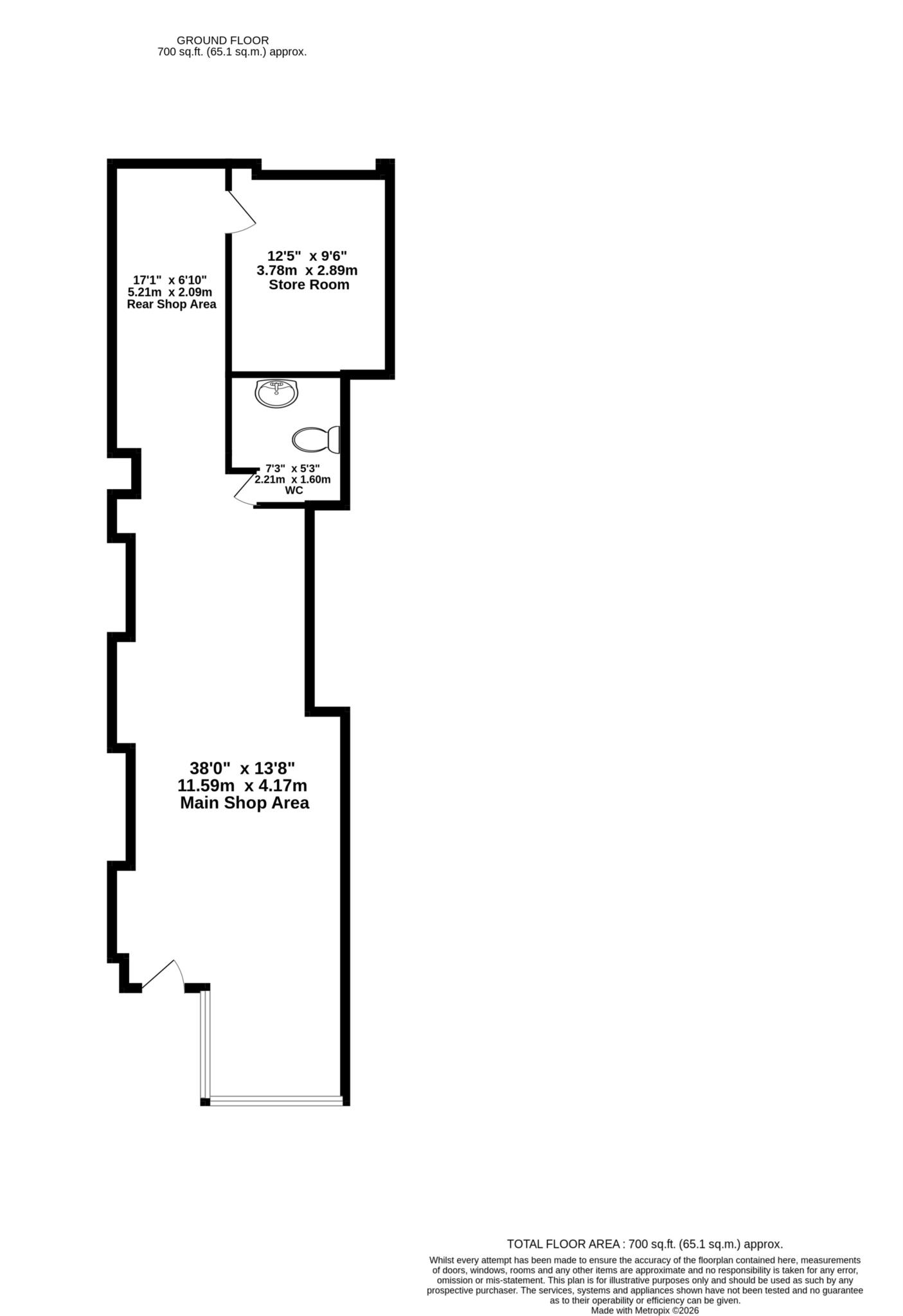
The property is situated in the heart of the town centre amongst overlooking the War Memorial, there are several independent coffee shops, cafes as well as national brands. The property briefly comprises Main Shop Area with Large Window Display, WC and separate store room at the rear of the property.


Located at the mouth of the River Exe, Exmouth is surrounded by the charming Devon Countryside yet is only twelve miles by road or rail from the Cathedral city of Exeter with its intercity railway station, airport, connection to the M5 motorway and all major shops and facilities. The Town of Exmouth enjoys over three miles of golden sands and a huge estuary and East Devon Coastline, including facilities of Woodbury Park Golf and Country Club. A vast range of other amenities including sailing, boating, water skiing, walking, a modern sports centre, swimming pool and a Marina are all available. Exmouth Town also has a range of shops, a variety of Restaurants, Marks and Spencer Foodhall, Several Primary Schools and Exmouth Community College and many other amenities.

The property briefly comprises Main Shop Area with Large Window Display, WC and separate store at the rear of the property.




Main Shop Area - 38' 0" (11.59m) by 13' 8" ( 4.17m) narrowing to 17' 1" (5.21m) x 6' 10" (2.09m).
Rear Shop Area - 17'1" x 6'10"5.21m x 1.85m)
Store Room - 12'5" x 9'6" (3.81m x 2.92m)


Terms
New lease available on full repairing and insuring basis on a term to be agreed.


Rateable Value
Please make your own enquiries with East Devon District Council but 100% Business Rate Relief is available for qualifying tenants.

VAT
Not Applicable to the rent

Legal Costs
Both parties to bear their own legal costs.





Business Rates
East Devon District Council, Business Rates

Notice
All photographs are provided for guidance only.

Floor Plan
EIR Chart

The Environmental Impact Rating is a measure of a home's impact on the environment in terms of carbon dioxide (C02) emissions - the higher the rating, the less impact it has on the environment.

Utility Supply Type
Electric Mains Supply
Gas None
Water Mains Supply
Sewerage Mains Supply
Broadband None
Telephone None

Other Items Description
Heating Not Specified
Garden/Outside Space No
Parking No
Garage No

Broadband Coverage Highest Available Download Speed Highest Available Upload Speed
Standard 19 Mbps 1 Mbps
Superfast 80 Mbps 20 Mbps
Ultrafast 1000 Mbps 200 Mbps

Mobile Coverage Indoor Voice Indoor Data Outdoor Voice Outdoor Data
EE Enhanced Enhanced Enhanced Enhanced
Three Enhanced Enhanced Enhanced Enhanced
O2 Enhanced Enhanced Enhanced Enhanced
Vodafone Enhanced Enhanced Enhanced Enhanced

Broadband and Mobile coverage information supplied by Ofcom.


marker icon